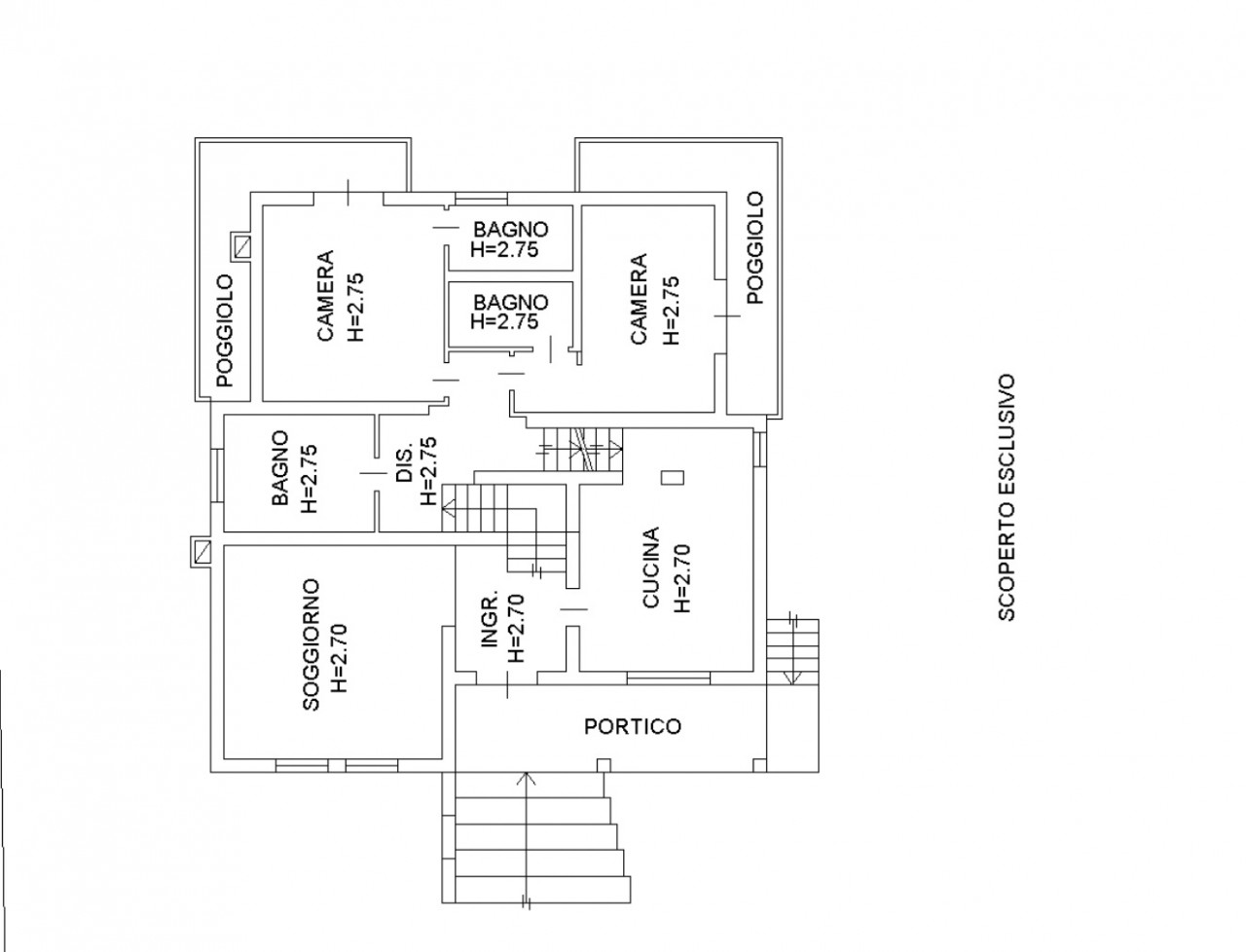
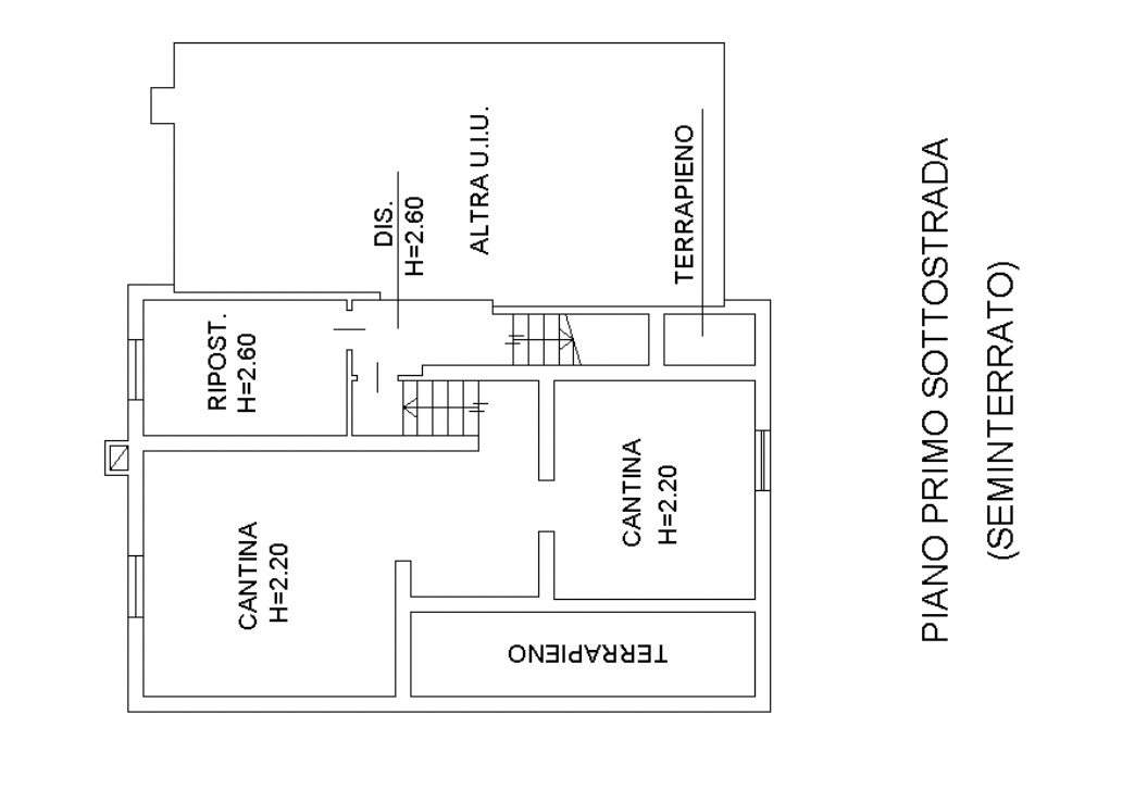
(Per INFO 3316190143) A San Giorgio delle Pertiche proponiamo in vendita Villa di generosa metratura dotata di giardino privato di oltre 800 mq. L'immobile è disposto su più livelli ed è così composto: al piano rialzato accogliente ingresso, che divide la cucina dal soggiorno, disimpegno, due camere matrimoniali con relativi bagni privati; al piano primo terza camera matrimoniale senza bagno privato, ma con la possibilità di realizzarlo; al piano seminterrato disimpegno, bagno ospiti, lavanderia, stanza stiro, taverna, palestra e garage doppio. Dispone di riscaldamento autonomo Gpl, due stufe a pellet, canna fumaria, aria condizionata in ogni camera da letto, parquet in legno rovere, infissi in legno, isolamento sul tetto, allarme volumetrico, zanzariere e impianto d'irrigazione. L'abitazione è stata costruita nel 1985 e ristrutturata nel 2019. Il prezzo comprende l'intero mobilio!
Certificazione Energetica D! Ottimo Affare! Rif. S5712
ATTENZIONE: Alcune immagini potrebbero essere sviluppate con tecniche di computer grafica (rendering fotorealistico) con riferimento a particolari di facciata e prospetti, parti comuni, parti private ed interni, al solo fine di prospettare un’ipotesi di futura realizzazione e/o potenzialità delle diverse soluzioni a seguito di personalizzazione degli utenti.
NB: Siamo alla ricerca di immobili RESIDENZIALI in vendita in zona per nostri clienti referenziati per i quali è già stato deliberato il mutuo, non è richiesta alcuna esclusiva, rimaniamo a disposizione per un sopralluogo, contattateci senza impegno.
I dati e le informazioni contenute nel presente annuncio hanno valore puramente indicativo e non costituiscono elemento, vincolo o presupposto contrattuale. Tutte le misure eventualmente riportate devono considerarsi indicative.
A tutela della privacy del proprietario, l'indirizzo indicato potrebbe non corrispondere alla reale ubicazione dell'immobile, ma trovarsi nelle immediate vicinanze e godere sostanzialmente degli stessi servizi.
Certificazione Energetica D! Ottimo Affare! Rif. S5712
ATTENZIONE: Alcune immagini potrebbero essere sviluppate con tecniche di computer grafica (rendering fotorealistico) con riferimento a particolari di facciata e prospetti, parti comuni, parti private ed interni, al solo fine di prospettare un’ipotesi di futura realizzazione e/o potenzialità delle diverse soluzioni a seguito di personalizzazione degli utenti.
NB: Siamo alla ricerca di immobili RESIDENZIALI in vendita in zona per nostri clienti referenziati per i quali è già stato deliberato il mutuo, non è richiesta alcuna esclusiva, rimaniamo a disposizione per un sopralluogo, contattateci senza impegno.
I dati e le informazioni contenute nel presente annuncio hanno valore puramente indicativo e non costituiscono elemento, vincolo o presupposto contrattuale. Tutte le misure eventualmente riportate devono considerarsi indicative.
A tutela della privacy del proprietario, l'indirizzo indicato potrebbe non corrispondere alla reale ubicazione dell'immobile, ma trovarsi nelle immediate vicinanze e godere sostanzialmente degli stessi servizi.
Mappa
Contattaci
INFORMAZIONI EXTRA
AMBIENTI
| Soggiorno | |
| Cucina | |
| Ripostigli | 2 |
| Soffitta | |
| Taverna | |
| Terrazzi | +3 |
| Giardino | |
| Cantina | |
| Posto auto | 2 |
| Garage doppio | 1 |
| Lavanderia |
LIVELLI & COMFORT
| Livelli | Piano rialzato , Piano semi interrato , Piano terra , Primo piano |
| Aria condizionata | |
| Camino | |
| Riscaldamento autonomo | |
| Allarme | |
| Animali ammessi | |
| Area fitness | |
| Ingresso indipendente | |
| Numero accessi carrai | 1 |
| Numero portoni | 1 |
| Porta blindata | |
| Tende da sole | |
| Vasca | |
| Zanzariere |



