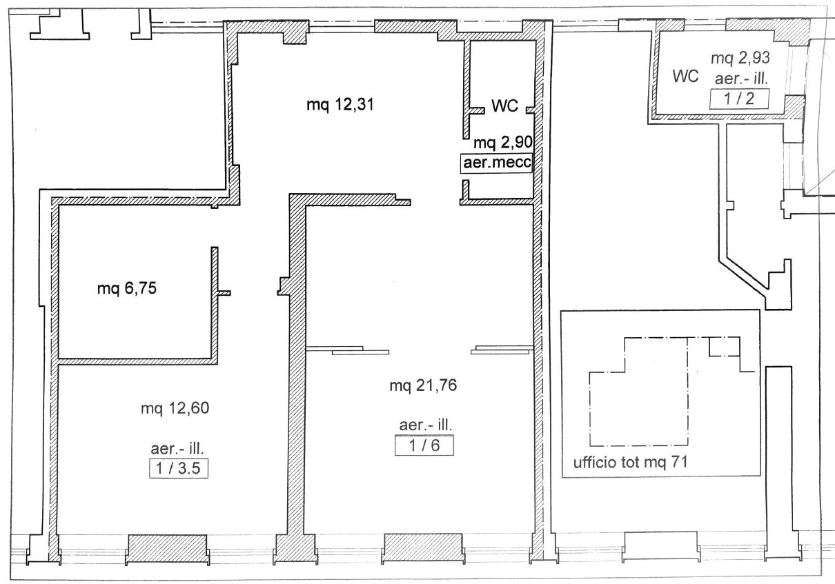
(Per INFO Mara 3481536890) Nella meravigliosa cornice storica del centro di Oderzo proponiamo in vendita un luminoso e pratico ufficio di 70 mq, ad oggi distribuito negli spazi in modo ottimale e funzionale per accogliere chiunque necessita di una posizione privilegiata per la propria attività. Per chi invece è alla ricerca di un immobile residenziale in una zona centralissima, c'è la possibilità di operare un cambio di destinazione d'uso e ricavare un mini appartamento, così distribuito: ampio ingresso, zona giorno luminosa con angolo cottura, camera matrimoniale con cabina armadio e bagno con doccia. Comoda zona lavanderia di proprietà. Alleghiamo bozza di progetto. L'immobile è provvisto di riscaldamento centralizzato con termosifoni e contacalorie, serramenti in legno doppio vetro. Ottimo anche per investimento sia ad uso ufficio che con eventuale cambio d'uso. Rif. U7289
NB Siamo alla ricerca di immobili per dei nostri clienti referenziati per i quali è già stato deliberato il mutuo. Non è richiesta alcuna esclusiva. Rimaniamo a disposizione per un sopralluogo, contattateci senza impegno..
I dati e le informazioni contenute nel presente annuncio hanno valore puramente indicativo e non costituiscono elemento, vincolo o presupposto contrattuale. Tutte le misure eventualmente riportate devono considerarsi indicative.
A tutela della privacy del proprietario, l'indirizzo indicato potrebbe non corrispondere alla reale ubicazione dell'immobile, ma trovarsi nelle immediate vicinanze e godere sostanzialmente degli stessi servizi.
NB Siamo alla ricerca di immobili per dei nostri clienti referenziati per i quali è già stato deliberato il mutuo. Non è richiesta alcuna esclusiva. Rimaniamo a disposizione per un sopralluogo, contattateci senza impegno..
I dati e le informazioni contenute nel presente annuncio hanno valore puramente indicativo e non costituiscono elemento, vincolo o presupposto contrattuale. Tutte le misure eventualmente riportate devono considerarsi indicative.
A tutela della privacy del proprietario, l'indirizzo indicato potrebbe non corrispondere alla reale ubicazione dell'immobile, ma trovarsi nelle immediate vicinanze e godere sostanzialmente degli stessi servizi.
Mappa
Contattaci
INFORMAZIONI EXTRA
AMBIENTI
LIVELLI & COMFORT
| Livelli | Primo piano |
| Riscaldamento centralizzato |

