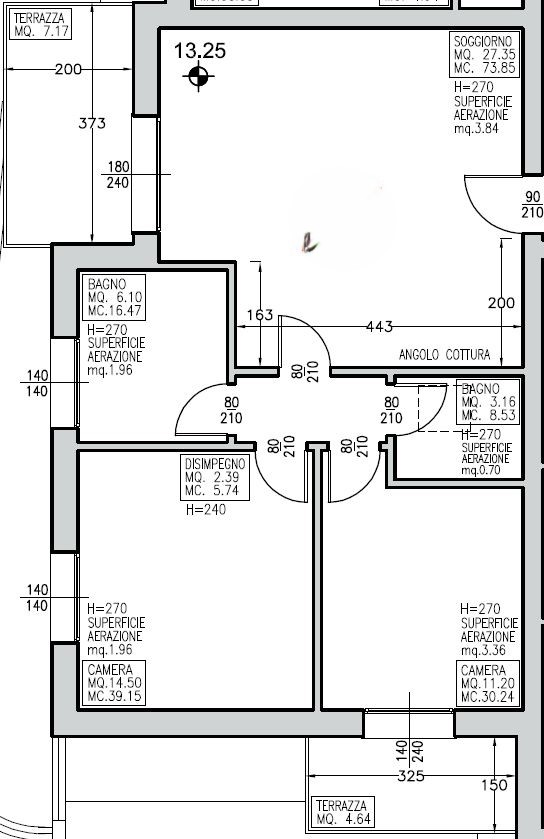
(Per INFO Mara 3481536890) A Maserada sul Piave, a pochi passi dal centro e comodo a tutti i principali servizi, proponiamo in vendita un meraviglioso trilocale, situato al primo ed ultimo piano e facente parte di una nuova lottizzazione che vedrà la costruzione di un residence composto da 9 unità totali distribuite su due porzioni di fabbricato. L'appartamento in oggetto è così composto: ingresso sulla zona giorno, che accoglierà un soggiorno con angolo cottura di circa 27 mq con accesso diretto al terrazzo di circa 7 mq, zona notte con una camera matrimoniale ed una singola dalle dimensioni generose, entrambe con accesso diretto allo scoperto esclusivo e due bagni. Al piano terra completa la proprietà il garage di 18 mq e un posto auto scoperto. Il capitolato previsto è di pregio e punta alla massima classe di efficienza energetica: riscaldamento a pavimento e raffrescamento in pompa di calore, cappotto esterno e cappotto interno, serramenti in PVC triplo vetro doppia camera, oscuranti motorizzati, impianto fotovoltaico da 3 KwP per unità con inverter ibrido predisposto all'installazione del sistema di accumulo e con la possibilità di incrementare i pannelli fino a 5 KwP (previa disponibilità degli spazi). Predisposizione allarme volumetrico e perimetrale. Anche il residence godrà di impianto fotovoltaico condominiale per abbattere ulteriormente le spese. Design moderno e ricercato, finiture di qualità. Unità in pronta consegna. Rif. A7300
ATTENZIONE: Alcune immagini potrebbero essere sviluppate con tecniche di computer grafica (rendering fotorealistico) con riferimento a particolari di facciata e prospetti, parti comuni, parti private ed interni, al solo fine di prospettare un’ipotesi di futura realizzazione e/o potenzialità delle diverse soluzioni a seguito di personalizzazione degli utenti.
NB Siamo alla ricerca di immobili RESIDENZIALI in vendita in zona per nostri clienti referenziati per i quali è già stato deliberato il mutuo, non è richiesta alcuna esclusiva, rimaniamo a disposizione per un sopralluogo, contattateci senza impegno.
I dati e le informazioni contenute nel presente annuncio hanno valore puramente indicativo e non costituiscono elemento, vincolo o presupposto contrattuale. Tutte le misure eventualmente riportate devono considerarsi indicative.
A tutela della privacy del proprietario, l'indirizzo indicato potrebbe non corrispondere alla reale ubicazione dell'immobile, ma trovarsi nelle immediate vicinanze e godere sostanzialmente degli stessi servizi.
ATTENZIONE: Alcune immagini potrebbero essere sviluppate con tecniche di computer grafica (rendering fotorealistico) con riferimento a particolari di facciata e prospetti, parti comuni, parti private ed interni, al solo fine di prospettare un’ipotesi di futura realizzazione e/o potenzialità delle diverse soluzioni a seguito di personalizzazione degli utenti.
NB Siamo alla ricerca di immobili RESIDENZIALI in vendita in zona per nostri clienti referenziati per i quali è già stato deliberato il mutuo, non è richiesta alcuna esclusiva, rimaniamo a disposizione per un sopralluogo, contattateci senza impegno.
I dati e le informazioni contenute nel presente annuncio hanno valore puramente indicativo e non costituiscono elemento, vincolo o presupposto contrattuale. Tutte le misure eventualmente riportate devono considerarsi indicative.
A tutela della privacy del proprietario, l'indirizzo indicato potrebbe non corrispondere alla reale ubicazione dell'immobile, ma trovarsi nelle immediate vicinanze e godere sostanzialmente degli stessi servizi.
Mappa
Contattaci
INFORMAZIONI EXTRA
AMBIENTI
| Soggiorno angolo cottura | |
| Terrazzi | 2 |
| Posto auto | 1 |
| Garage | 1 |
LIVELLI & COMFORT
| Livelli | Primo piano |
| Piano numero | 1 |
| Pannelli fotovoltaici | |
| Predisposizione aria condizionata | |
| Riscaldamento autonomo | |
| Riscaldamento a pavimento | |
| Porta blindata | |
| Predisposizione allarme | |
| Tapparelle motorizzate | |
| Zanzariere |
