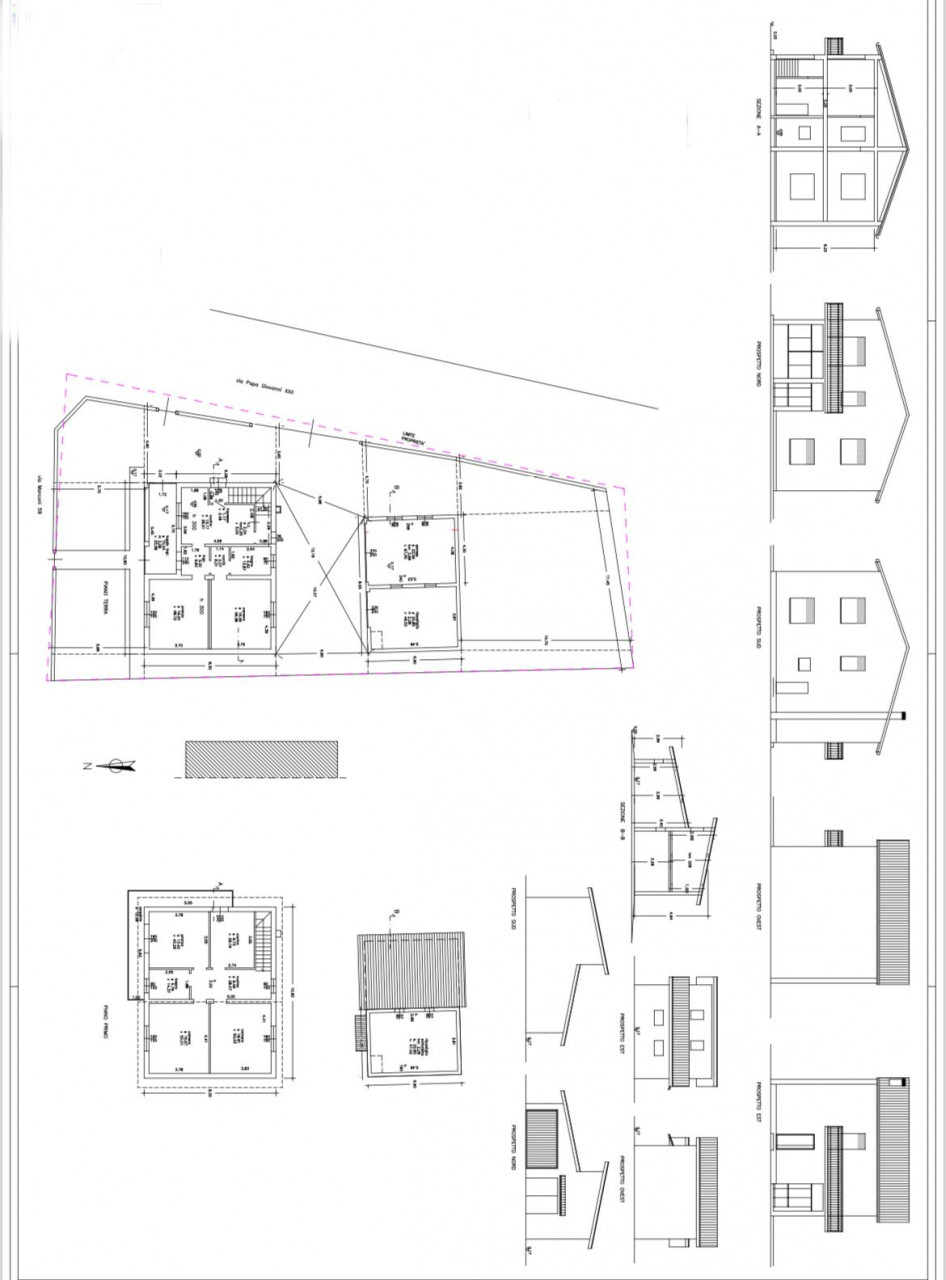
(Per INFO Vittorio 3517343301) Immaginate di vivere nel cuore pulsante di Pozzonovo, in una casa singola che offre spazio, luce e infinite possibilità. Questa affascinante abitazione di 150 mq, distribuiti su due livelli, rappresenta il luogo ideale per chi sogna una vita fatta di comfort, libertà e tranquillità. All'ingresso sarete accolti da un ampio soggiorno elegante, il posto perfetto dove creare ricordi speciali con amici e familiari, mentre la cucina abitabile adiacente vi invita a vivere ogni pasto come un momento di condivisione e gioia. Gli ambienti ampi e ben distribuiti stimolano la creatività, permettendovi di personalizzare ogni angolo secondo il vostro stile e i vostri desideri. Salendo al primo piano troverete camere da letto spaziose e inondate di luce naturale grazie ad ampie finestre panoramiche che vi faranno sentire subito a casa. Ogni stanza è pensata per garantire la massima privacy, senza rinunciare alla sensazione di apertura e respiro. Un ulteriore vantaggio è rappresentato dall'assenza di spese condominiali; qui potrete godervi ogni giorno la vostra indipendenza senza costi aggiuntivi mensili. La posizione strategica di questa casa vi permette di avere tutto a portata di mano: negozi alimentari, scuole, farmacie, mezzi pubblici sono tutti raggiungibili in pochi minuti a piedi, rendendo ogni giornata più semplice e piacevole, inoltre, la facilità di collegamento con Padova, Treviso e le principali città vicine amplia le possibilità sia lavorative che di svago. Investire in questa casa significa scegliere uno stile di vita dove praticità e benessere si incontrano, un luogo pronto ad accogliere i vostri sogni e a trasformarli in realtà. Non lasciatevi sfuggire questa occasione unica, contattateci oggi stesso per ricevere tutte le informazioni o per fissare una visita, fate il primo passo verso la casa che avete sempre desiderato! Rif. S7143
NB Siamo alla ricerca di immobili RESIDENZIALI in vendita in zona per nostri clienti referenziati per i quali è già stato deliberato il mutuo, non è richiesta alcuna esclusiva, rimaniamo a disposizione per un sopralluogo, contattateci senza impegno.
I dati e le informazioni contenute nel presente annuncio hanno valore puramente indicativo e non costituiscono elemento, vincolo o presupposto contrattuale. Tutte le misure eventualmente riportate devono considerarsi indicative.
A tutela della privacy del proprietario, l'indirizzo indicato potrebbe non corrispondere alla reale ubicazione dell'immobile, ma trovarsi nelle immediate vicinanze e godere sostanzialmente degli stessi servizi.
NB Siamo alla ricerca di immobili RESIDENZIALI in vendita in zona per nostri clienti referenziati per i quali è già stato deliberato il mutuo, non è richiesta alcuna esclusiva, rimaniamo a disposizione per un sopralluogo, contattateci senza impegno.
I dati e le informazioni contenute nel presente annuncio hanno valore puramente indicativo e non costituiscono elemento, vincolo o presupposto contrattuale. Tutte le misure eventualmente riportate devono considerarsi indicative.
A tutela della privacy del proprietario, l'indirizzo indicato potrebbe non corrispondere alla reale ubicazione dell'immobile, ma trovarsi nelle immediate vicinanze e godere sostanzialmente degli stessi servizi.

